top of page
11.jpg

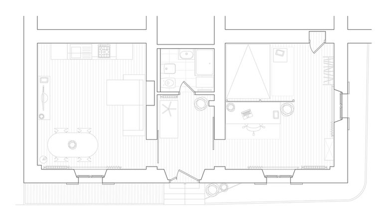
 LUMIO

 architettura

Chi sono

 .chi siamo 

LUMIO è uno studio di architettura con sede in Ticino e  specializzato in nuove costruzioni e ristrutturazioni. Con oltre 10 anni di esperienza e oltre 30 progetti realizzati, ci occupiamo di ogni fase del progetto: dal concept al dettaglio architettonico, dalle pratiche amministrative fino alla direzione lavori in cantiere.

Progettiamo spazi essenziali, sostenibili e senza tempo, dove ogni linea è pensata per migliorare il modo in cui vivi ogni giorno.

Se stai pensando di costruire o rinnovare casa oppure di effettuare un investimento, contattaci: trasformiamo insieme le tue idee in architettura concreta.

swiss-franc.png

.PROGETTAZIONE

.PROMOZIONE

.DIREZIONE LAVORI

.CREAZIONE VALORE

Ci occupiamo di tutto ciò che riguarda il progetto; Proposte, Domande di costruzione, richieste preventivi, render etc., proponendo contenuti accattivanti da promuovere.

Investiamo nella promozione delle nostre attività sia attraverso i principali canali social grazie alla consulenza di esperti del settore, sia attraverso i contatti personali.

Supervisioniamo a tutto tondo il progetto, sia dal punto di vista costruttivo che economico grazie ad anni di esperienza nel settore e alla conoscenza di 50+ imprese ticinesi.

Vogliamo garantire al nostro cliente un investimento positivo, che sia costruendo l'immobile dei propri sogni o attraverso la costruzione di un immobile a scopo vendita o contratto di locazione.

 .servizi 

Portfolio

 .portfolio 

 .contatti 

Grazie per averci contattato

bottom of page